Ez a weboldal sütiket használ
A jobb szolgáltatás nyújtásának érdekében sütiket használunk. Az oldal jobb felhasználása érdekében kérjük, fogadja el a sütiket. További információ itt: Adatvédelmi tájékoztató
2019-09-19 15:19:03
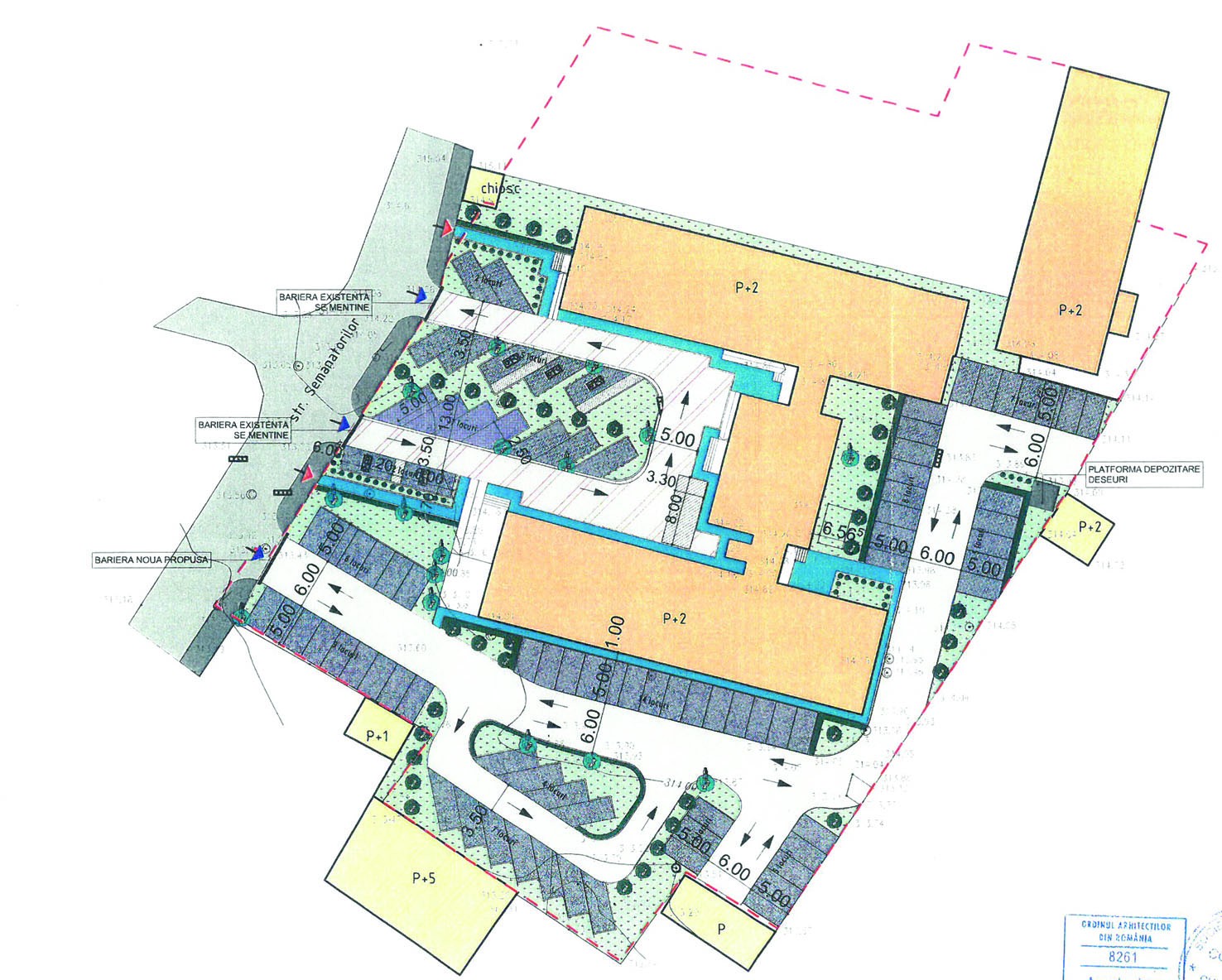
A Maros Megyei Tanács augusztus 12-i ülésén megszavazta a marosvásárhelyi II. Számú Járóbeteg-rendelő és a Szájsebészeti és Fogászati Klinika környezetének rendezésére vonatkozó műszaki-gazdasági dokumentációt, illetve a beruházás műszaki mutatóit. A tervek szerint 84 parkolóhelyet alakítanak ki, ebből ötöt fogyatékkal élők számára, és külön parkolót létesítenek a mentőautóknak. A tervben szerepel a járdák átrendezése, az esővíz-elvezető rendszer kiépítése és egy világítórendszer felszerelése, amivel éjszaka megvilágítható a parkoló egész területe. A beruházás értéke 1.739.711 lej héával együtt.
Fotó: Karácsonyi Zsigmond
A város szívében rendezettebb környezetre van igény
Mint ismeretes, a szóban forgó ingatlan az egykori Hosszú utcában – az 1918. December 1. út 24–26. szám alatt – található, és a Maros Megyei Tanács kezelésébe tartozik. Azok, akik megfordultak a háza táján, tudják, hogy a parkolók rendezetlenek, mondhatni improvizáltak. A kocsikkal sokszor a járdára, a zöldövezetre, néha sárban parkolnak. A parkolóhely amúgy kevés, s nem használhatja bárki, sorompó van, csak „illetékesek”, azaz az ott dolgozók hajthatnak be. A járdákon, a parkolóhelyek felületén feltöredezett a burkolat, gödrös, esőben pocsolyás a terep. A járókelőknek és a gépkocsivezetőknek egyaránt nehézkes itt a közlekedés.
Tekintettel arra, hogy igény van a rendelőintézet (poliklinika) körüli rendezett környezetre, és több parkolóhelyre van szükség, 2016-ban készítettek egy megvalósíthatósági tervet, ezt 2018-ban időszerűsítették annak érdekében, hogy a legmegfelelőbb terv valósulhasson meg.
A beruházás megvalósításához szükséges műszaki-gazdasági dokumentációt a Mansart Corporate Kft. állította össze.
865 négyzetméternyi zöldövezet lesz
A tervező javaslata értelmében 84 parkolóhelyet alakítanak ki, ebből ötöt fogyatékkal élő személyek számára. Ezeket a hatályos szabályozásnak megfelelően jelölik ki és számozzák meg. A mentőautóknak külön parkolóhelyet biztosítanak. A járdákat járólapokkal burkolják, és a parkoló teljes területén esővíz-elvezető rendszert alakítanak ki.
A tervező két változatot dolgozott ki. Az első szerint a poliklinika körüli 3822 négyzetméteres összterületből 241 négyzetméternyi járda, 1395 négyzetméter úttest, 1157 négyzetméternyi térkövezett parkoló és 865 négyzetméter zöldövezet lesz. A zöldövezetet illetően a marosvásárhelyiek mindig is – jogosan – érzékenyek, hiszen a szennyezett városi környezetben a fák valamelyest javítanak a levegő minőségén.
A második változatnál valamivel kisebb az előirányzott zöldövezet, 750 négyzetméter. Eszerint az összes fát kivágták volna, helyettük 30 gyorsan növő, esztétikusabb fát ültettek volna. Ez a változat viszont 1,83 millió lejbe kerülne.
A Maros Megyei Tanács sajtóirodája tájékoztatott, hogy a munkálatok elvégzésére kiírták a pályázatot. Egy ajánlattevő volt, az ajánlat kiértékelése folyamatban van.
